湖北麻城某隧道污水(shuǐ)处理站项目
发布时间:2025-02-22   浏览(lǎn):1594次
qualification

污水案例

我们在努力缔造更多(duō)荣誉的路上

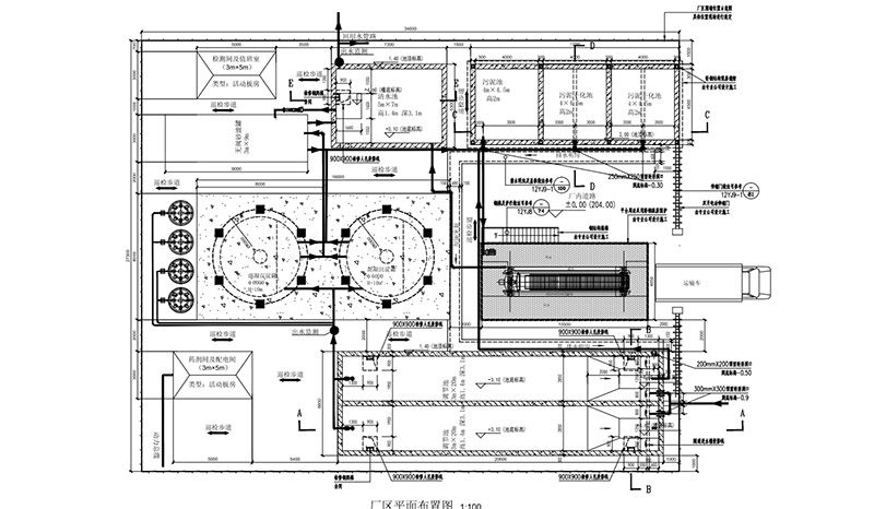
湖北麻城某隧道污水处理站项目EPC总承包工程 主要建设内容为(wéi)土建预埋、污水处理厂设(shè)备、设备安装、电气仪表、园区内管网等(děng)总包工程。预计污水厂远(yuǎn)期处理规模将(jiāng)达到(dào)3000方

1

2

3

4

5

6

7

8

9

版权所有 河南万川环保设备有限公司  备案号:豫ICP备19046121号-1 
天美mv星空mv免费观看_天美星空大象mv在线播放视频_天美星空大象MV视频